Manmade peninsula under way in Istanbul
Ömer Erbil - ISTANBUL

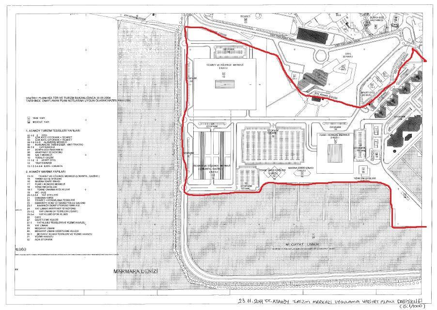
There is nearly no space left for any new construction along the shore of Ataköy, a neighborhood of expensive residences and apartments with many shopping malls and spots of leisure next to Bakırköy, a district in Istanbul very close to Atatürk Airport.
The new project, named the Mega Marina, is a manmade peninsula which will be built as a coastal extension.
Currently, only an area known as Baruthane, located between the Galleria Shopping Mall and Air Force Academy, is left for new construction projects.
The proposed area does not encompass the breakwater and previously made marina.
The Mega Marina will be made as an extension of the area known as the Ataköy Tourism Complex, which also contains the Galleria Shopping Mall, Sheraton Hotel, Ataköy Marina Hotel, Ataköy Marina and Ataköy Marina Park, and will be used as a marina for large cruisers.
The process to fill the peninsula has already begun, with filling materials being carried by ships to the construction site because of heavy traffic on the road running along the construction site.
Conference halls, convention centers, restaurants and clubs are to be built on the proposed peninsula.
A three-story trade and entertainment center, two-story eatery with a club, two-story convention center, five-story administration building, five-story yacht sales building, open-air parking area for 320 vehicles, yacht maintenance offices and several swimming pools will also be constructed on the proposed area.
The buildings recently built on Ataköy’s shore line were given construction permits for use as aparthotels, although all of them have been sold as residences.
The height for buildings on the proposed area is set to be 15.5 meters, far lower than the level of the actual proposed plans of the buildings, such as the five-story administration building and yacht sales building.
The Bakırköy Municipality said there had been no official request filed at the municipality for a permit to fill the peninsula, adding they had been informed that the ongoing filling operation was for the breakwater.
Ataköy Tourism Complex is currently under the administration of Dati-Mariners Ataköy Tourism and Construction Company, a company of Dati Holding that was founded by Şadan Kalkavan, Fuat Miras, Gündüz Kaptanoğlu, Eşref Cerrahoğlu and Metin Kalkavan.
The owner of the area, however, is the State Housing Development Association (TOKİ).
TOKİ and Dati Holding had previously eyed the land for construction licenses but the tender was canceled due to lack of sufficient participants.

